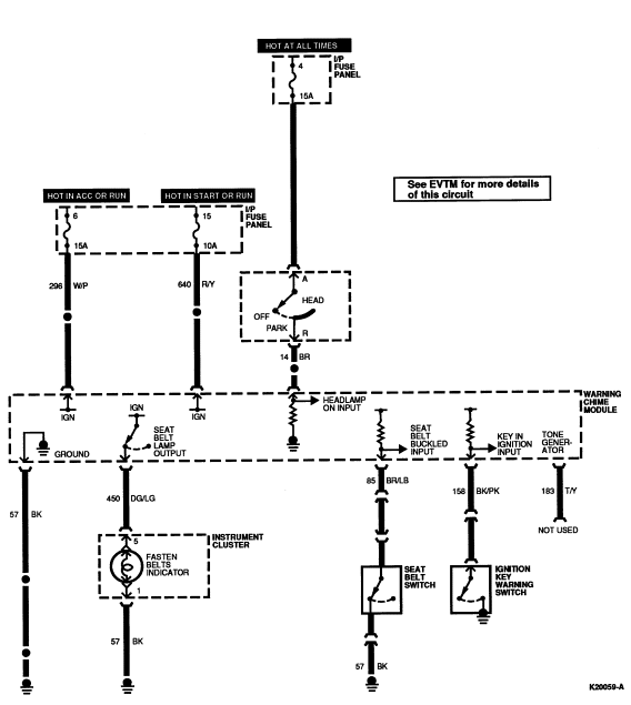
Section 13-09B: Gauges, Warning Devices— Chime/Buzzer System | 1994 Mustang Workshop Manual |



| Pin Number | Circuit | Circuit Function |
|---|---|---|
| 1 | 57 (BK) | Ground |
| 2 | 85 (BR/LB) | Left Front Seat Belt Warning |
| 3 | — | Not Used |
| 4 | 183 (T/Y) | Not Used |
| 5 | 158 (BK/PK) | Key Warning Switch |
| 6 | 14 (BR) | Headlamp On Input |
| 7 | 159 (R/PK) | Left Door Courtesy Lamp Switch Input |
| 8 | 296 (W/P) | 12 Volt Ignition Supply |
| 9 | 640 (R/Y) | Start/Run Input |
| 10 | 450 (DG/LG) | Seat Belt Warning Lamp Output |