Section 07-01: Transmission, Automatic—AODE | 1994 Mustang Workshop Manual |
Check the vehicle speed sensor (VSS) (9E731), output shaft speed sensor and the connector at transmission. Replace the rubber seal, if necessary.
NOTE: Fluid from other external sources can collect between the case (7005) and pan rail and give the appearance of a oil pan to case gasket (7A191) leak. If fluid is present check the following positions as outlined.
Check for leakage at oil pan to case gasket.
Leakage at the oil pan to case gasket often can be stopped by tightening the retaining bolts to 12-15 Nm (108-132 lb-in). Do not over-tighten transmission oil pan (7A194) bolts. If necessary, replace the oil pan to case gasket.
Check the oil filler tube (7A228) connection at the transmission case or transmission oil pan. If leakage is found here, install a new O-ring and press the oil filler tube to the case. The filler tube bracket should align properly and be attached to the transmission or engine.
Check the fluid lines and fittings between the transmission and the transmission oil cooler (7A095) in the radiator tank for looseness, wear or damage. When fluid is found to be leaking between the case and the transmission oil cooler inlet tube (7A030) or oil cooler tube (7A031), tighten the fitting to 31 Nm (23 lb-ft). Do not try to stop the fluid leak by increasing the torque beyond specification. This may cause damage to the case threads.
If the leak continues, replace the cooler line fitting and tighten to 20-26 Nm (15-19 lb-ft). The same procedure should be followed for fluid leaks between the transmission oil cooler and cooler line fittings.
Check the engine coolant in the radiator (8005). If transmission fluid is present in the coolant, the transmission oil cooler in the radiator is probably leaking.
The transmission oil cooler can be further checked for leaks by disconnecting the oil cooler tube and transmission oil cooler inlet tube from the cooler fittings and applying 345-517 kPa (50-75 psi) air pressure to the fittings. Remove the radiator cap (8100) to relieve the pressure buildup at the exterior of the oil cooler tank. If the transmission oil cooler is leaking and/or will not hold pressure, the transmission oil cooler must be replaced. Refer to Section 03-03 for transmission oil cooler replacement procedure.
If leakage is found at the manual control lever (7A256), replace the manual control lever oil seal (7B498).
Pipe Plugs
The transmission has five pipe plugs: four on the RH side of the case and one on the LH side. Inspect the plugs for leakage. Ensure they are tightened to 8-16 Nm (6-12 lb-ft). If tightening does not stop the leak, replace the plug.
When a converter drain plug leaks, remove the drain plug with a six-point wrench. Coat the threads with Pipe Sealant with Teflon® D8AZ-19554-A (WSK-M2G350-AZ and ESR-M18P7-A) or equivalent and install plug. Tighten the drain plug to 28-30 Nm (21-23 lb-ft). Fluid leakage from the converter housing may also be caused by engine oil leaking past the rear main bearing seal, or from oil galley plugs. Verify the exact cause of the leak before starting service procedures.
Oil soluble aniline or fluorescent dyes premixed at the rate of 2.5ml (1/2-teaspoon) of dye powder to 0.231 (1/2-pint) of transmission fluid have proved helpful in locating the source of fluid leakage. Such dyes may be used to determine whether an engine oil or transmission fluid leak is present, or if the fluid in the oil cooler leaks into the engine coolant system. A black light must be used with the fluorescent dye solution.
Oil Cooler Tube Leakage
When fluid leakage is found at the transmission oil cooler, the transmission oil cooler must be replaced. Refer to Section 03-03.
When one or more of the oil cooler tubes must be replaced, each replacement oil cooler tube must be fabricated from the same size steel tubing as the original oil cooler tube.
Using the old oil cooler tube as a guide, bend the new oil cooler tube as required. Add the necessary fittings and install the oil cooler tube
After the fittings have been tightened, add fluid as needed and check for fluid leaks.
Leakage in Torque Converter Area
When internal wear or damage has occurred in the transmission, metal particles, clutch plate material, or band material may have been carried into the torque converter (7902) and transmission oil cooler. These contaminants are a major cause of recurring transmission troubles and MUST be removed from the system before the transmission is put back into service.
CAUTION: Whenever a transmission has been disassembled to replace worn or
damaged parts or because the main control valve body (7A100) sticks from foreign material, the main control valve body, transmission oil cooler and transmission oil cooler inlet tube and oil cooler tube MUST be cleaned and flushed by using the Rotunda Torque Converter
Cleaner 014-00028 or equivalent. Under NO circumstances should an attempt be
made to clean torque converter
by hand agitation with solvent.
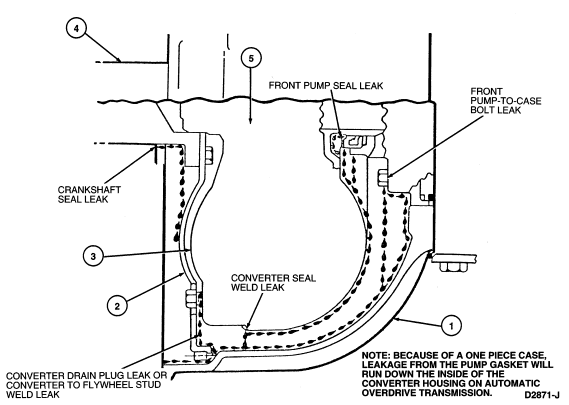
In diagnosing and correcting fluid leaks in the front pump support and gear (7A103) and torque converter area, use the following procedures to locate the exact cause of the
leakage. Leakage at the front of transmission, as evidenced by fluid around the
torque converter housing, may have several sources. By careful observation, it
is possible, in many instances, to pinpoint the source of leak before removing
the transmission from the vehicle. The paths which the fluid takes to reach the
bottom of the torque converter housing are shown in the following illustration.
Possible Leak Points

| Item | Part Number | Description |
|---|---|---|
| 1 | — | Torque Converter Housing (Part of 7902) |
| 2 | 6375 | Flywheel |
| 3 | 7902 | Torque Converter |
| 4 | 6303 | Crankshaft |
| 5 | — | Impeller (Part of 7902) |
NOTE: White tissue paper may aid in determining the color (red is transmission fluid) and source of the leaking fluid.
Torque Converter Leakage Check
If welds on the torque converter indicate leakage, remove the torque converter and make the following check:
Assemble Rotunda Torque Converter Leak Detector 021-00054 or equivalent
to the torque converter. Test torque converter for leaks, following the directions supplied with the detector kit. 